Create a Website Account - Manage notification subscriptions, save form progress and more.
Project Status: Completed
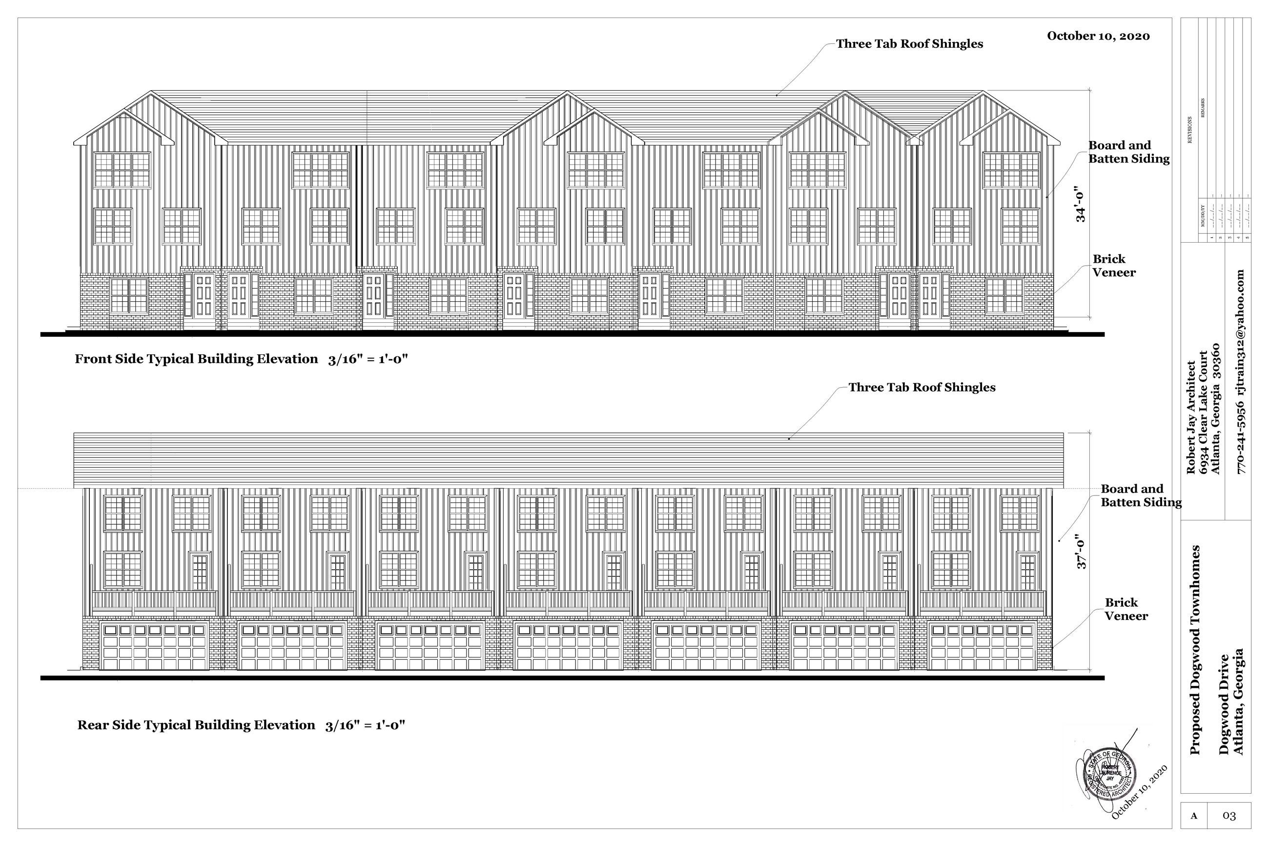
Brief description: Proposal to construct a 23-unit townhome development at 3165 Dogwood Drive. This project consists of three-story buildings with 3-4 bedrooms and two-car garages.